
En el corazón del valle y rodeadas de viñedos, almendros y suaves colinas, estas villas de nueva construcción en Aspe ofrecen un estilo de vida tranquilo y luminoso.
Con parcelas disponibles también en pueblos con encanto como Pinoso, La Romana o Hondón de las Nieves.
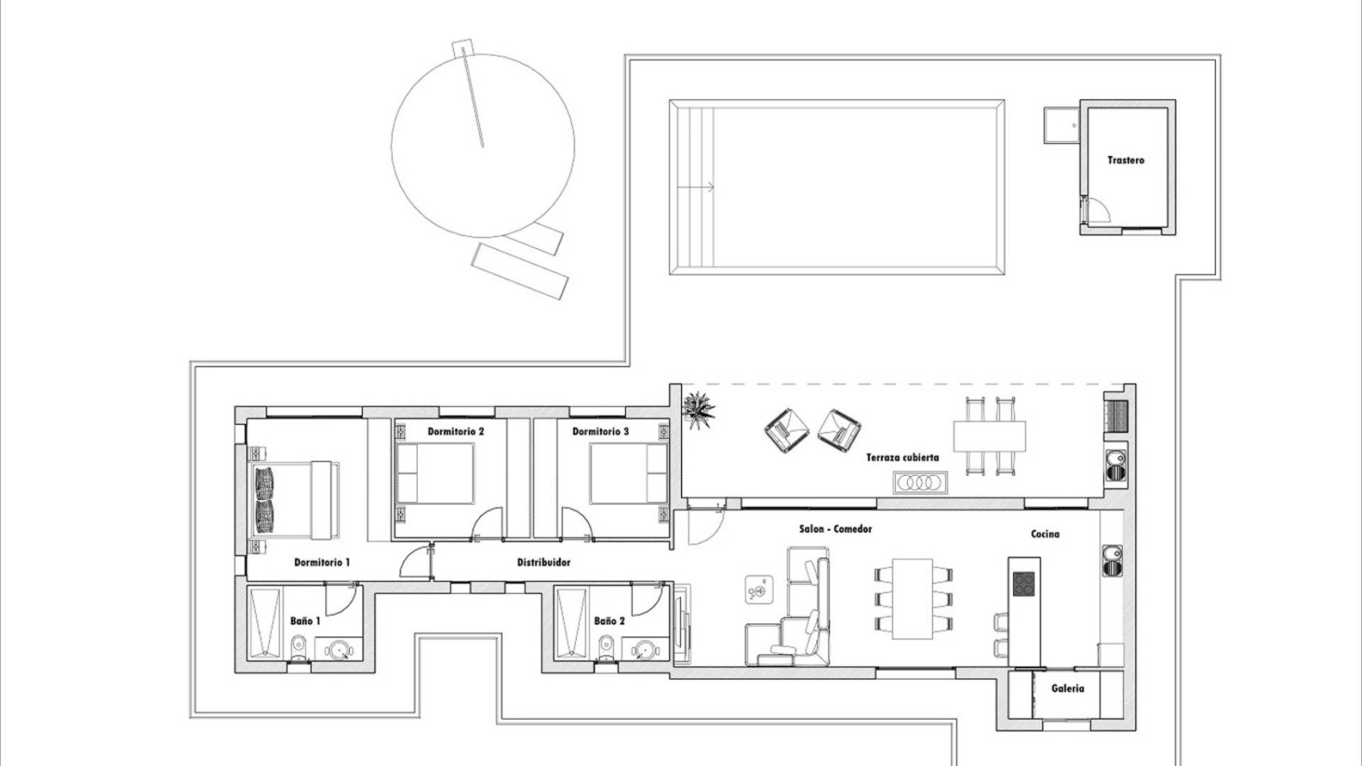
Podrás elegir entre varios modelos personalizables, con 2, 3 o 4 dormitorios, construidos sobre losa o con estructura (ideal para viviendas de dos plantas). Cada proyecto se adapta a tus necesidades y a la parcela rústica elegida, siempre con una superficie mínima de 10.000 m², para disfrutar de la amplitud y la privacidad del campo.
El precio final se determinará según el modelo y el terreno seleccionados, garantizando siempre la calidad en materiales, acabados y diseño.
Características incluidas:
Vallado de 2.500 m² con puerta de acceso automática corredera y motor incluido.
Piscina privada de 8x4 m con dos focos LED.
Trastero para la bomba de piscina y ducha exterior.
Carpintería de aluminio con persianas motorizadas y acristalamiento Climalit.
Armarios empotrados en dormitorios.
Baños equipados con sanitarios, plato de ducha con mampara, mueble con lavabo empotrado y espejo LED.
Cocina completamente amueblada con bancada de Silestone o similar.
Videoportero con imagen.
Preinstalación de aire acondicionado frío/calor por conductos.
Sistema de agua caliente mediante aerotermia.
Preinstalación para futuras placas solares.
Vive el auténtico estilo de vida mediterráneo en Aspe, a solo 15 minutos de Elche, 25 minutos de Alicante, con el aeropuerto cercano y las playas a un corto trayecto en coche. No dejes pasar la oportunidad de diseñar tu hogar rodeado de naturaleza, tranquilidad y sol todo el año. Contacta con Alicante Maravillas y empieza a construir la vida que siempre has soñado.
Esta información que se proporciona aquí está sujeta a errores y no forma parte de ningún contrato. La oferta se puede cambiar o retirar sin previo aviso. Los precios no incluyen los costes de compra
Número de Colegiado API: 1079
© 2026 ALICANTE MARAVILLAS · Nota legal · Privacidad · Cookies · Mapa Web · Diseño: Mediaelx
En primer lugar, gracias por contactarnos.
Hemos recibido su solicitud con respecto a la referencia de propiedad:AM-PALATINO . Uno de nuestros agentes se pondrá en contacto con usted lo antes posible.
En primer lugar, gracias por contactarnos.
Hemos recibido una solicitud de informe si baja el precio de la propiedad con la referencia: AM-PALATINO
Mientras tanto, eche un vistazo a esta selección de propiedades similares que podrían ser de su interés: