
Villa de Nueva Construcción en La Romana – Exclusividad, Naturaleza y Diseño Vanguardista
Presentamos esta espectacular villa de obra nueva en La Romana, actualmente en proceso de construcción, con entrega prevista para finales de 2025 o principios de 2026. Diseñada para quienes buscan calidad, eficiencia y un entorno natural privilegiado, esta propiedad combina arquitectura moderna con funcionalidad y confort en cada detalle.
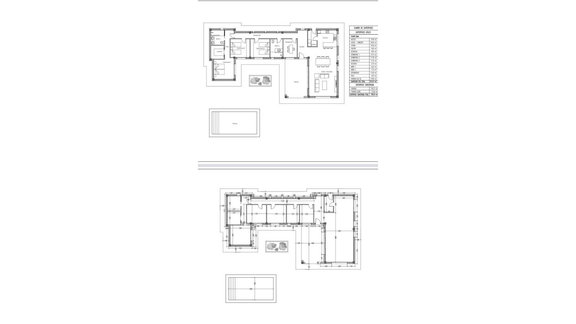
Características Generales:
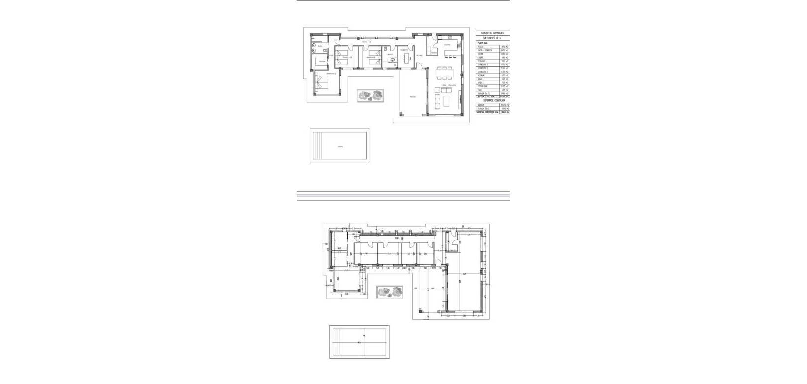
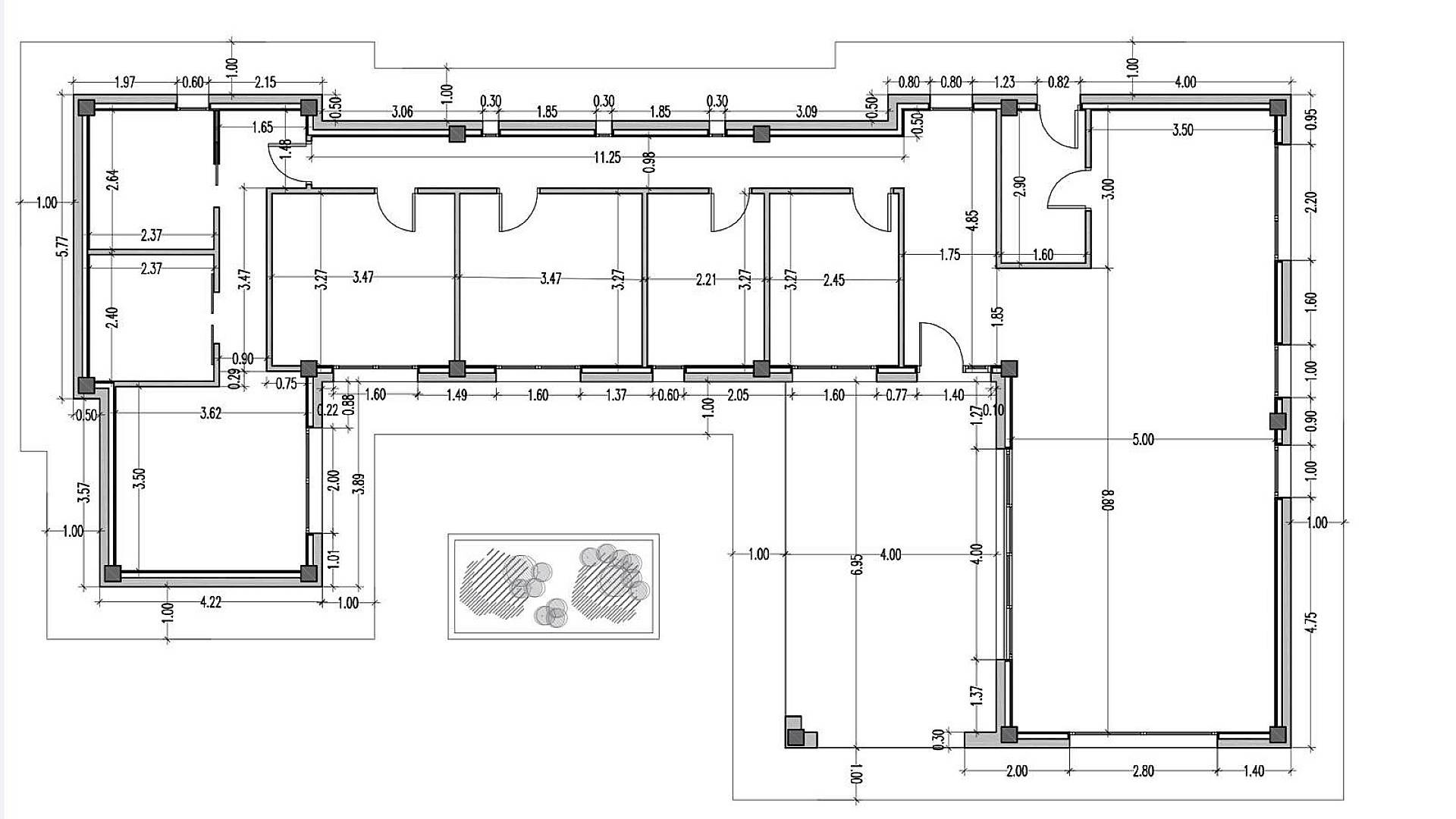
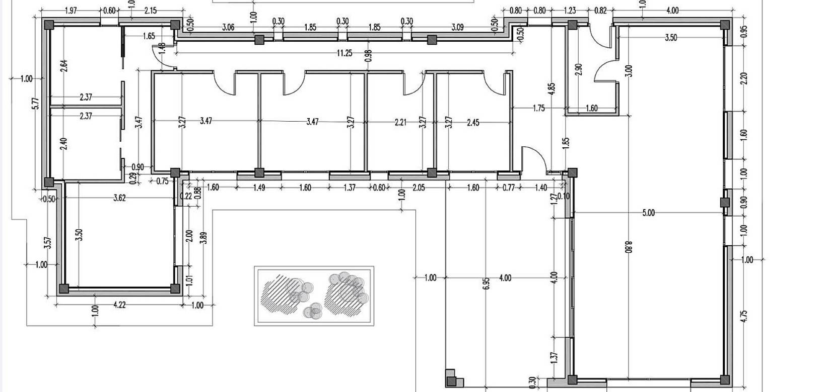
- Superficie construida: 190 m²
- Parcela privada: 11.000 m² (con 4.000 m² vallados)
- Dormitorios: 3 habitaciones + despacho
- Baños: 2 completos
- Vestidor independiente
- Amplia terraza con vistas
- Piscina privada 8x4 m con iluminación LED
- Vistas impresionantes a la montaña
- Entrega estimada: Finales de 2025 / Principios de 2026
Distribución Interior con Superficies
- Salón-comedor: 44,00 m²
- Cocina independiente: 10,50 m²
- Galería: 4,65 m²
- Dormitorio principal: 13,15 m²
- Dormitorios 2 y 3: 11,35 m² cada uno
- Despacho: 8,00 m²
- Vestidor: 5,70 m²
- Baño 1: 6,25 m²
- Baño 2: 7,22 m²
- Distribuidor: 11,00 m²
- Terraza con vistas: 13,90 m²
Memoria de Calidades – Construcción y Acabados
Estructura y Cerramientos
Cimentación con zapatas aisladas y estructura de hormigón armado
Fachada en monocapa blanco con cerramiento de termoarcilla y cámara con aislamiento EPS
Cubierta
Cubierta plana con sistema de evacuación de aguas
Carpintería Exterior
Puerta acorazada de seguridad
Ventanas de PVC gris antracita con rotura de puente térmico
Climalit, repisas de piedra y persianas motorizadas
Carpintería Interior
Puertas lacadas en blanco con manillas de diseño
Pavimentos y Revestimientos
Gres porcelánico de primera calidad en toda la vivienda
Pavimento antideslizante en terrazas y perímetro exterior
Revestimiento cerámico personalizado en cocina y baños
Cocina y Baños
Cocina
Mobiliario alto y bajo hasta el techo
Encimera Silestone con isla central
Preinstalación para electrodomésticos y campana extractora
Fregadero en acero y grifería monomando
Baños
Cerámica de 1ª calidad
Platos de ducha con mamparas de vidrio
Sanitarios en porcelana blanca
Muebles de baño con lavabo empotrado y espejo
Grifería monomando cromada
Confort y Tecnología
Climatización por conductos (frío/calor) en salón y dormitorios
Producción de ACS mediante termo eléctrico de 100 litros
Preinstalación de placas solares en solárium
Sistema de ventilación vertical
Electricidad con grado de electrificación elevado
Persianas motorizadas
Videoportero
Instalaciones de TV y datos en dormitorios y salón
Exterior – Naturaleza y Privacidad
- Piscina privada de 8 x 4 metros con focos LED
- Zona ajardinada con césped artificial (15 m² aprox.)
- 4.000 m² vallados de parcela con puerta automática para vehículos (5 m)
- Vallado frontal con muro y valla metálica
Ubicación – La Romana, Alicante
Esta villa se encuentra en una de las zonas más tranquilas y demandadas del interior de Alicante. Rodeada de naturaleza, ofrece privacidad, seguridad y vistas espectaculares a la montaña. A tan solo unos minutos del centro del pueblo y con excelentes conexiones a la ciudad de Alicante, el aeropuerto y la costa.
Esta información que se proporciona aquí está sujeta a errores y no forma parte de ningún contrato. La oferta se puede cambiar o retirar sin previo aviso. Los precios no incluyen los costes de compra
Número de Colegiado API: 1079
© 2026 ALICANTE MARAVILLAS · Nota legal · Privacidad · Cookies · Mapa Web · Diseño: Mediaelx
En primer lugar, gracias por contactarnos.
Hemos recibido su solicitud con respecto a la referencia de propiedad:ADH-92851. Uno de nuestros agentes se pondrá en contacto con usted lo antes posible.
En primer lugar, gracias por contactarnos.
Hemos recibido una solicitud de informe si baja el precio de la propiedad con la referencia: ADH-92851
Mientras tanto, eche un vistazo a esta selección de propiedades similares que podrían ser de su interés: