
Excellente opportunité de construire la maison de vos rêves dans la charmante ville d’Aspe.
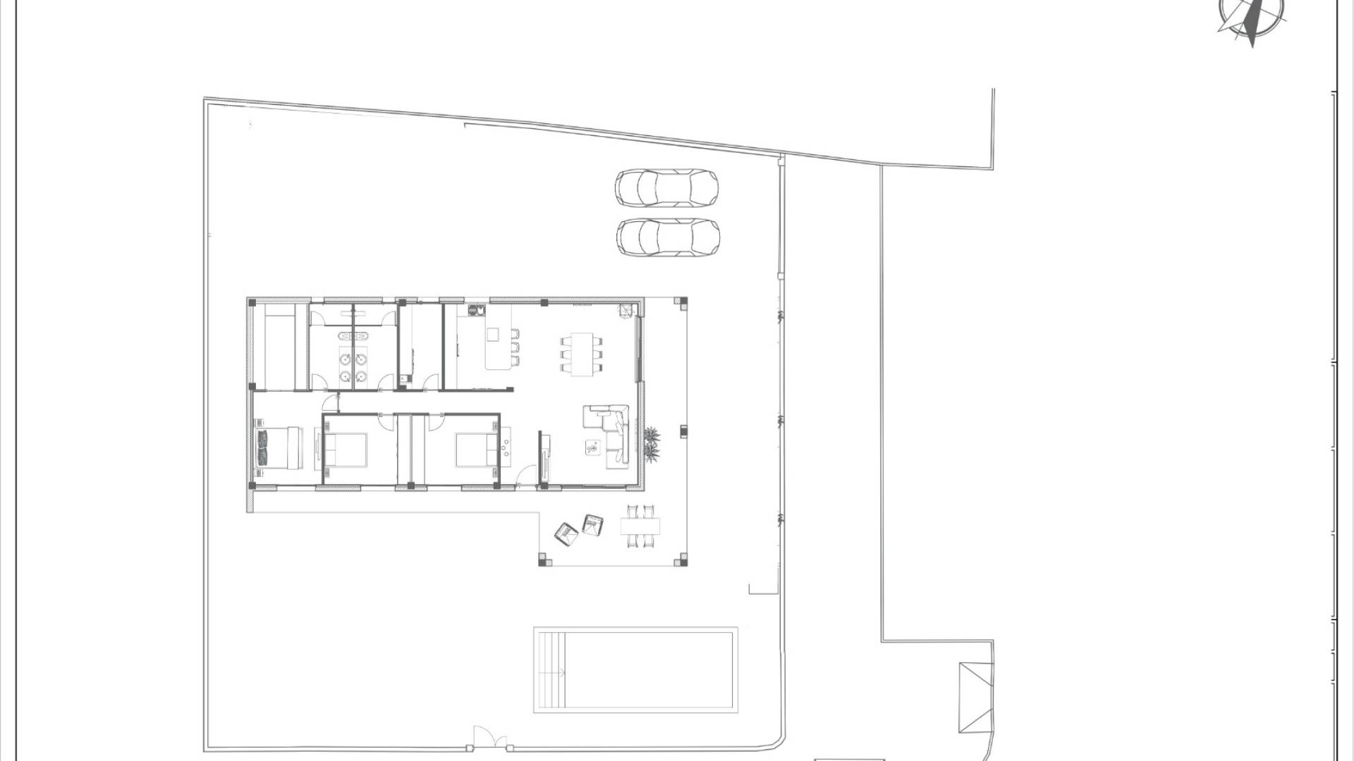
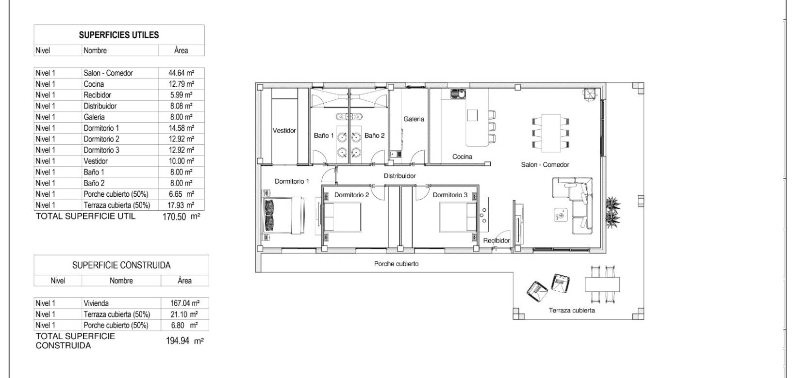
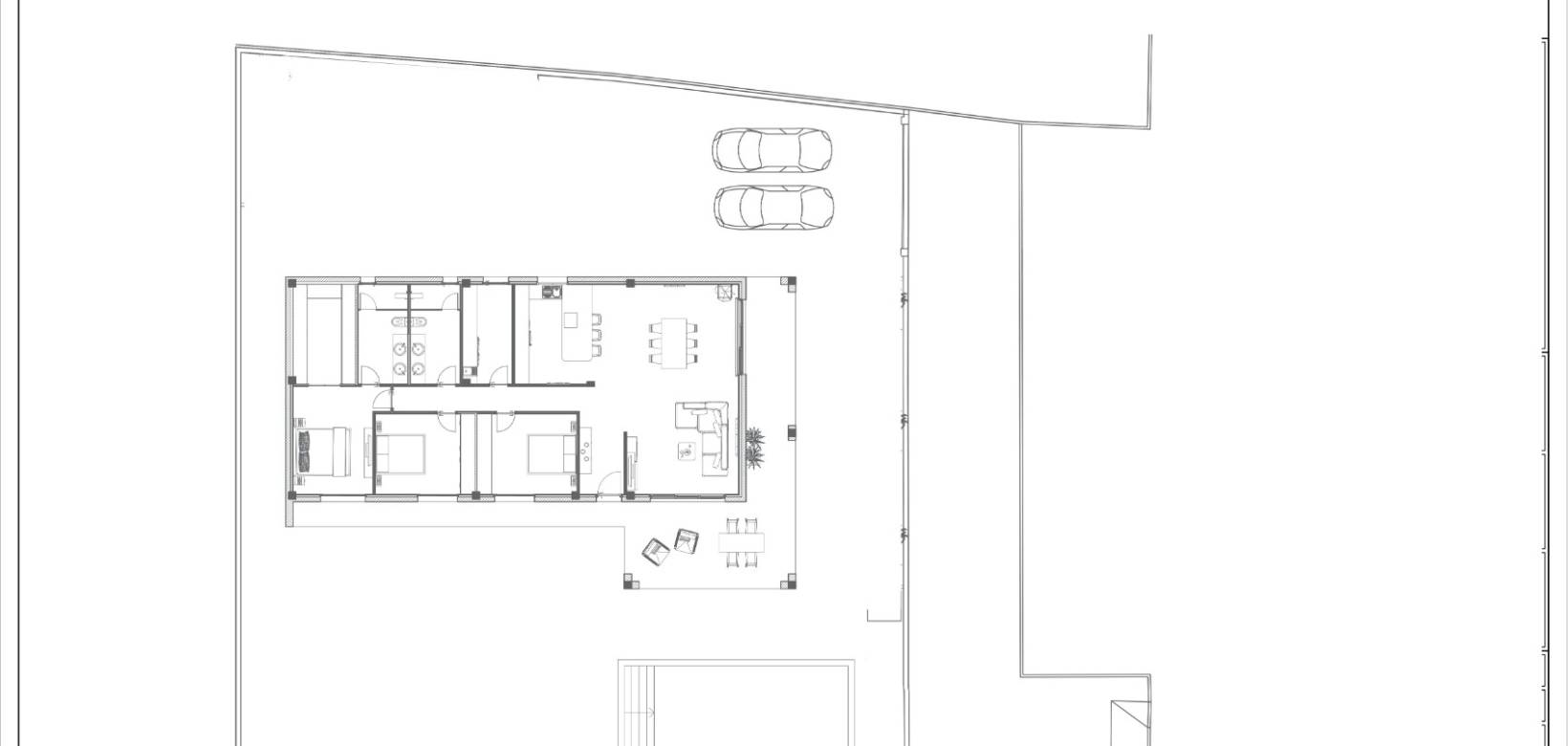
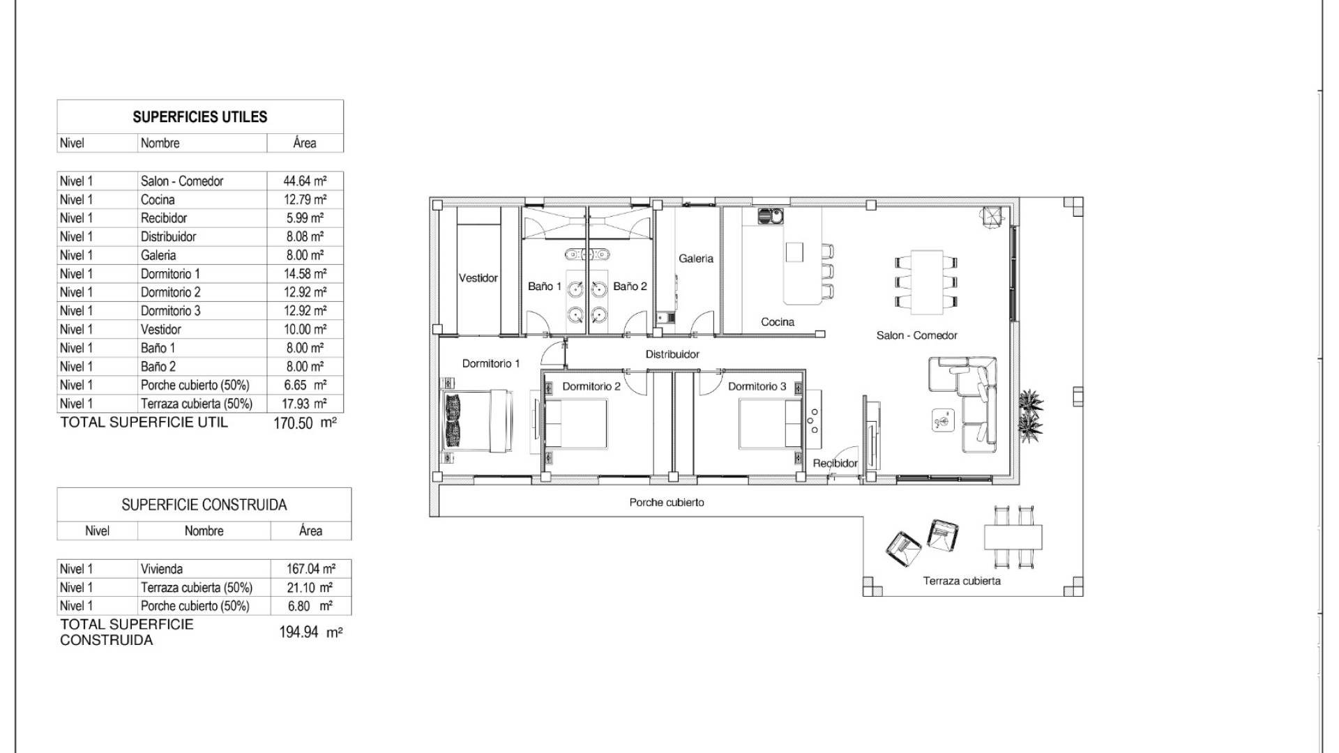
Cette parcelle urbaine de 791 m² est en vente avec un projet rédigé pour la construction d'une maison individuelle, incluant également la réalisation d'une piscine privée et le clôturage du terrain.
Le terrain dispose de points de raccordement pour l'eau et l'électricité, et la zone bénéficie de l'accès à Internet par fibre optique.
Une opportunité idéale pour construire la maison dont vous avez toujours rêvé, dans un environnement bien desservi et avec tous les services à proximité.
Aspe, à seulement quelques minutes en voiture, est une ville accueillante et dynamique de l’intérieur de la province d’Alicante. Elle offre tous les services du quotidien : supermarchés comme Mercadona, centre de santé, pharmacies, écoles, banques, installations sportives, bars, restaurants, ainsi qu’un large éventail de commerces locaux.
De plus, Aspe se distingue par sa richesse culturelle et ses traditions, avec ses fêtes populaires, ses marchés et sa gastronomie réputée. Tout cela dans un cadre naturel entouré de vignes, d’oliviers, à moins de 30 minutes de l’aéroport d’Alicante et des plages méditerranéennes.
Une opportunité parfaite pour ceux qui recherchent la tranquillité sans renoncer au confort des services à portée de main.
Cette information donnée ici est sujette à des erreurs et ne fait partie d'aucun contrat. L'offre peut être modifiée ou retirée sans préavis. Les prix n'incluent pas les coûts d'achat
Numéro de membre de l'API: 1079
© 2026 ALICANTE MARAVILLAS · Mentions légales · Intimité · Cookies · Plan du site · Conception: Mediaelx
Tout d’abord, merci de nous contacter.
Nous avons reçu votre demande concernant la référence du bien:AM-ASPEJU. Un de nos agents vous contactera dans les meilleurs délais.
Tout d’abord, merci de nous contacter.
Nous avons reçu une demande de rapport si vous abaissez le prix de la propriété avec la référence: AM-ASPEJU
En attendant, jetez un œil à cette sélection de propriétés similaires qui pourraient vous intéresser: