
Au cœur de Pinoso, cette magnifique villa neuve allie style, confort et durabilité. Disponible dès maintenant, cette propriété offre une maison prête à vivre avec des finitions de haute qualité et tous les extras inclus pour un prix final de 565.000€, incluant la villa, le terrain et l’équipement complet.
Caractéristiques principales :
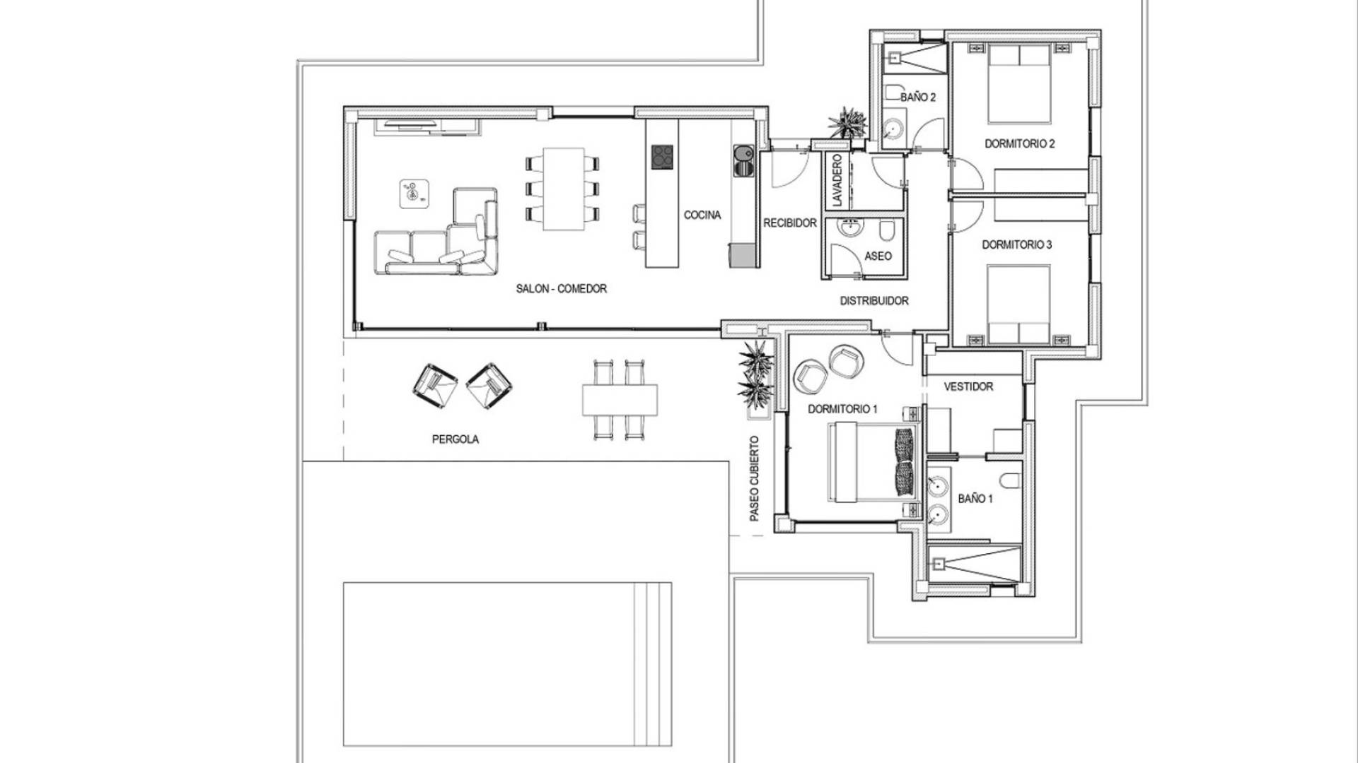
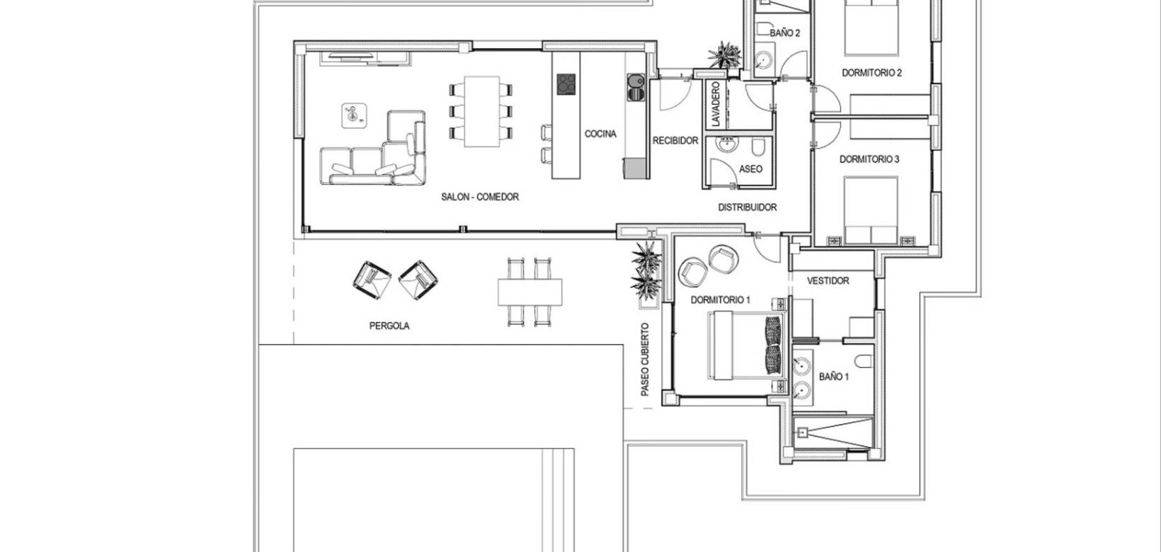
Menuiserie en aluminium avec rupture de pont thermique et volets motorisés dans toutes les pièces (sauf salon-salle à manger et galerie).
Placards intégrés dans toutes les chambres.
WC suspendus.
Receveurs de douche extra-plats avec paroi en verre trempé fixe.
Robinetterie monocommande et meubles de salle de bain avec lavabo intégré et miroir.
Cuisine équipée avec meubles et plan de travail en Silestone ou similaire.
Vidéophone avec image.
Façade extérieure avec éclairage LED.
Préinstallation pour point de recharge de voiture électrique dans le garage.
Installation de climatisation réversible par conduits.
Système d’eau chaude et chauffage par le sol dans toute la maison avec équipement aérothermique.
Installation de panneaux photovoltaïques.
Station de traitement biologique des eaux.
Mur avant du terrain en blocs avec revêtement en pierre naturelle.
Entrée de la villa avec portail en fer forgé.
10 palmiers avec arrosage automatique et jardin paysager.
Portail coulissant automatique avec moteur et télécommande.
Piscine de 8x4 m avec 2 lumières LED et douche extérieure.
Zone de gazon artificiel.
Préinstallation pour le chauffage de l’eau de la piscine.
Périmètre de la piscine pavé en carrelage porcelainé.
Espace barbecue avec rangement pour installations et toilettes invité.
Garage de 33 m² avec porte automatique et télécommande.
Cette villa offre un style de vie exclusif, alliant luxe, confort et efficacité énergétique dans un cadre privilégié à Pinoso.
Cette information donnée ici est sujette à des erreurs et ne fait partie d'aucun contrat. L'offre peut être modifiée ou retirée sans préavis. Les prix n'incluent pas les coûts d'achat
Numéro de membre de l'API: 1079
© 2026 ALICANTE MARAVILLAS · Mentions légales · Intimité · Cookies · Plan du site · Conception: Mediaelx
Tout d’abord, merci de nous contacter.
Nous avons reçu votre demande concernant la référence du bien:AM-CRISTAL. Un de nos agents vous contactera dans les meilleurs délais.
Tout d’abord, merci de nous contacter.
Nous avons reçu une demande de rapport si vous abaissez le prix de la propriété avec la référence: AM-CRISTAL
En attendant, jetez un œil à cette sélection de propriétés similaires qui pourraient vous intéresser: