
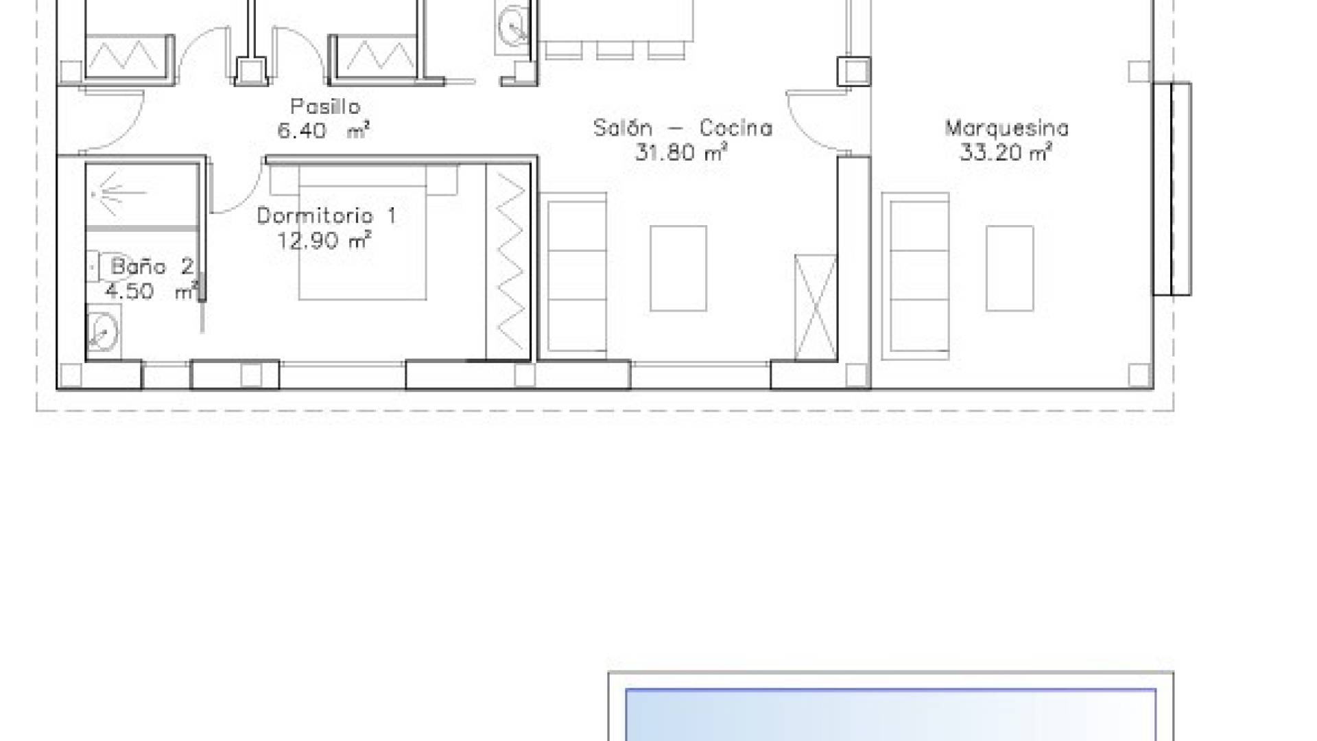
Très grand terrain à bâtir de plus de 40 000 m² à Yecla. Le terrain présente plusieurs niveaux et offre une vue imprenable sur les montagnes environnantes. Il dispose d'un raccordement à l'eau d'irrigation et à l'électricité, inclus dans le prix. Ce terrain est tout à fait exceptionnel car il comprend déjà un plan de maison inclus dans le prix. Le projet prévoit une maison comprenant 3 chambres, 2 salles de bains, une cuisine ouverte sur le salon, un porche couvert et une piscine de 4 x 8 m. Nous travaillons avec plusieurs constructeurs à Yecla ; une maison comme celle-ci peut être construite pour environ 250 000 euros. Vous pouvez également acheter le terrain sans le plan de la maison pour 52 000 euros.
Cette information donnée ici est sujette à des erreurs et ne fait partie d'aucun contrat. L'offre peut être modifiée ou retirée sans préavis. Les prix n'incluent pas les coûts d'achat
Numéro de membre de l'API: 1079
© 2026 ALICANTE MARAVILLAS · Mentions légales · Intimité · Cookies · Plan du site · Conception: Mediaelx
Tout d’abord, merci de nous contacter.
Nous avons reçu votre demande concernant la référence du bien:ET-86491. Un de nos agents vous contactera dans les meilleurs délais.
Tout d’abord, merci de nous contacter.
Nous avons reçu une demande de rapport si vous abaissez le prix de la propriété avec la référence: ET-86491
En attendant, jetez un œil à cette sélection de propriétés similaires qui pourraient vous intéresser: