
Uitstekende kans om het huis van je dromen te bouwen in het charmante stadje Aspe.
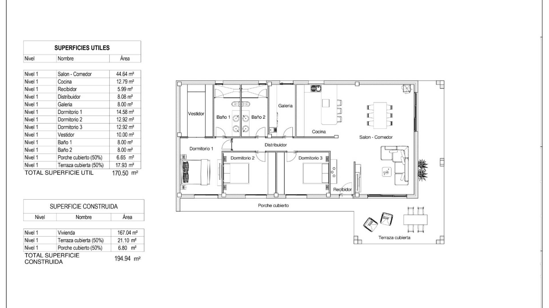
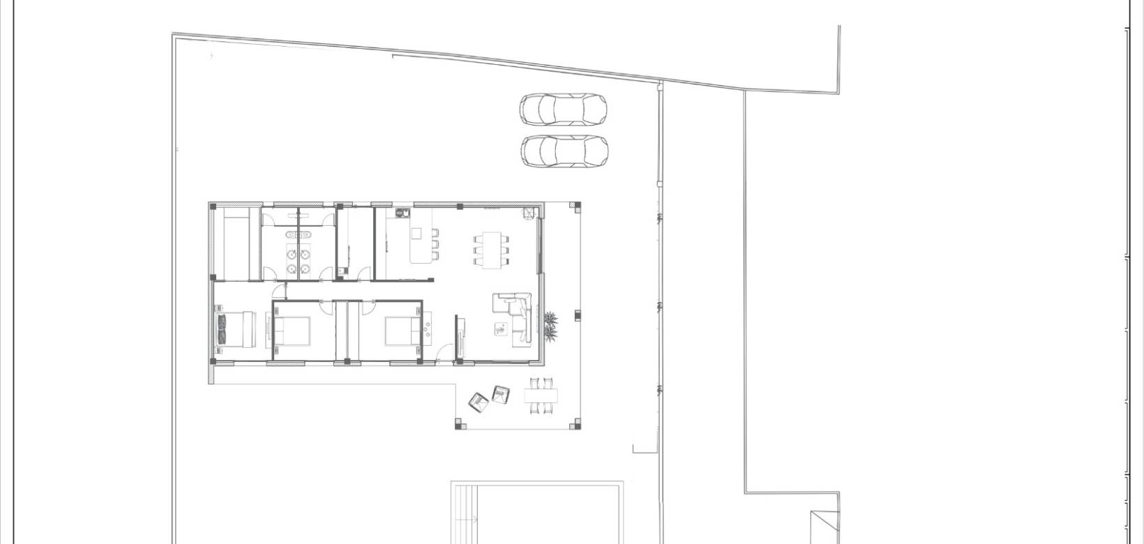
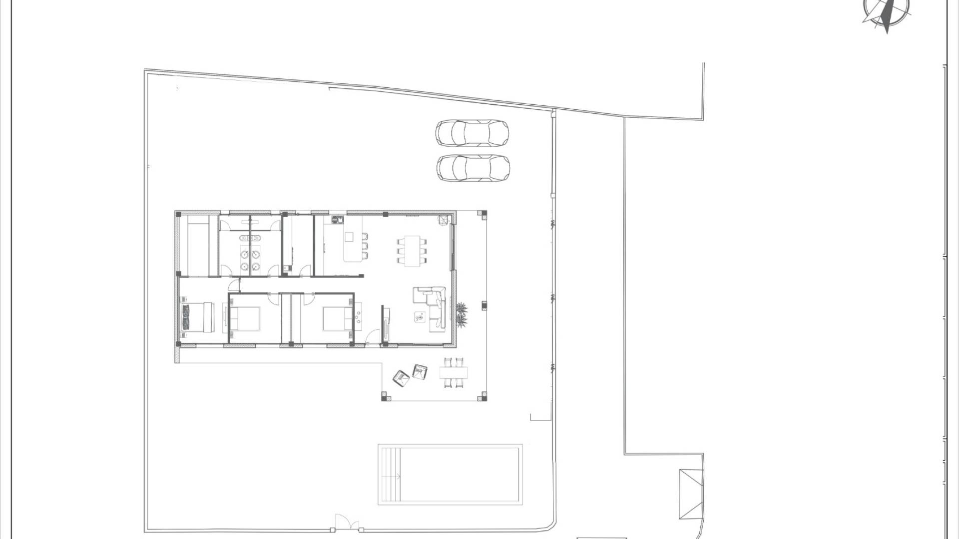
Dit stedelijke perceel van 791 m² wordt te koop aangeboden met een uitgewerkt project voor de bouw van een vrijstaande eengezinswoning, inclusief de aanleg van een privézwembad en het omheinen van het perceel.
Aansluitpunten voor water en elektriciteit zijn beschikbaar, en het gebied heeft toegang tot snel glasvezelinternet.
Een geweldige kans om jouw ideale woning te realiseren in een goed verbonden omgeving met alle voorzieningen binnen handbereik.
Aspe, op slechts een paar minuten rijden, is een gastvrij en levendig stadje in het binnenland van de provincie Alicante. Het biedt alle noodzakelijke dagelijkse voorzieningen: supermarkten zoals Mercadona, een medisch centrum, apotheken, scholen, banken, sportfaciliteiten, bars, restaurants en een breed aanbod aan lokale winkels.
Bovendien staat Aspe bekend om zijn rijke culturele en traditionele leven, met lokale feesten, markten en uitstekende gastronomie – allemaal in een schilderachtige omgeving omringd door wijngaarden, olijfgaarden en natuur, op minder dan 30 minuten van de luchthaven van Alicante en de Middellandse Zee.
Een ideale kans voor wie rust zoekt zonder in te leveren op comfort en voorzieningen.
Deze informatie is hier onderhevig aan fouten en maakt geen deel uit van een contract. De aanbieding kan zonder kennisgeving worden gewijzigd of ingetrokken. Prijzen zijn exclusief aankoopkosten.
API Member Number: 1079
Allereerst bedankt dat je contact met ons hebt opgenomen.
We hebben uw verzoek met betrekking tot de eigenschap referentie ontvangen:AM-ASPEJU. Een van onze agenten neemt zo snel mogelijk contact met u op.
Allereerst bedankt dat je contact met ons hebt opgenomen.
We hebben een aanvraag voor een rapport ontvangen als u de prijs van het onroerend goed met de referentie verlaagt: AM-ASPEJU
Bekijk in de tussentijd eens een selectie van vergelijkbare woningen die voor u van belang kunnen zijn: