
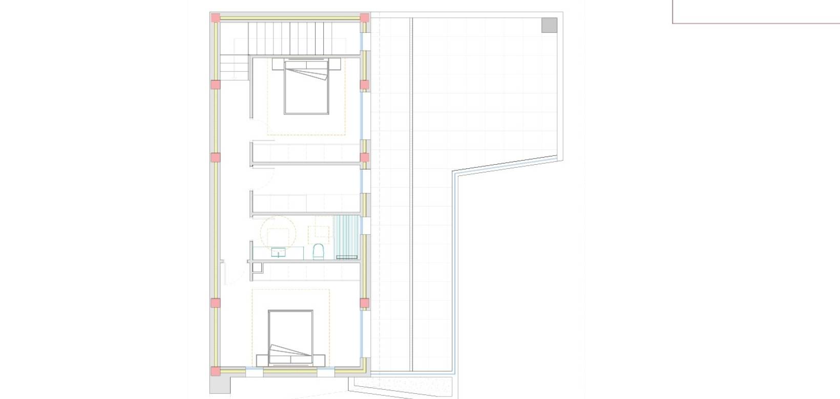
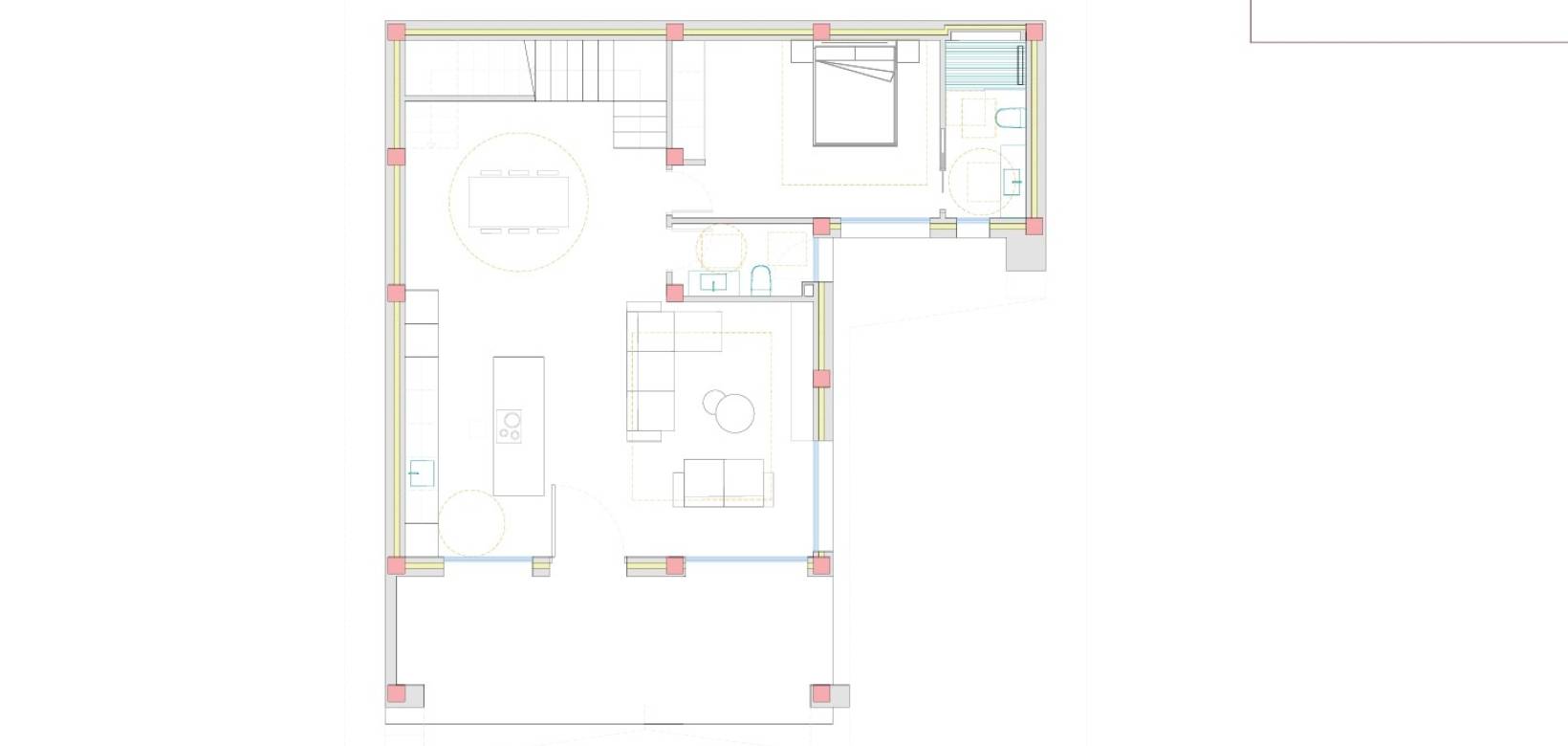
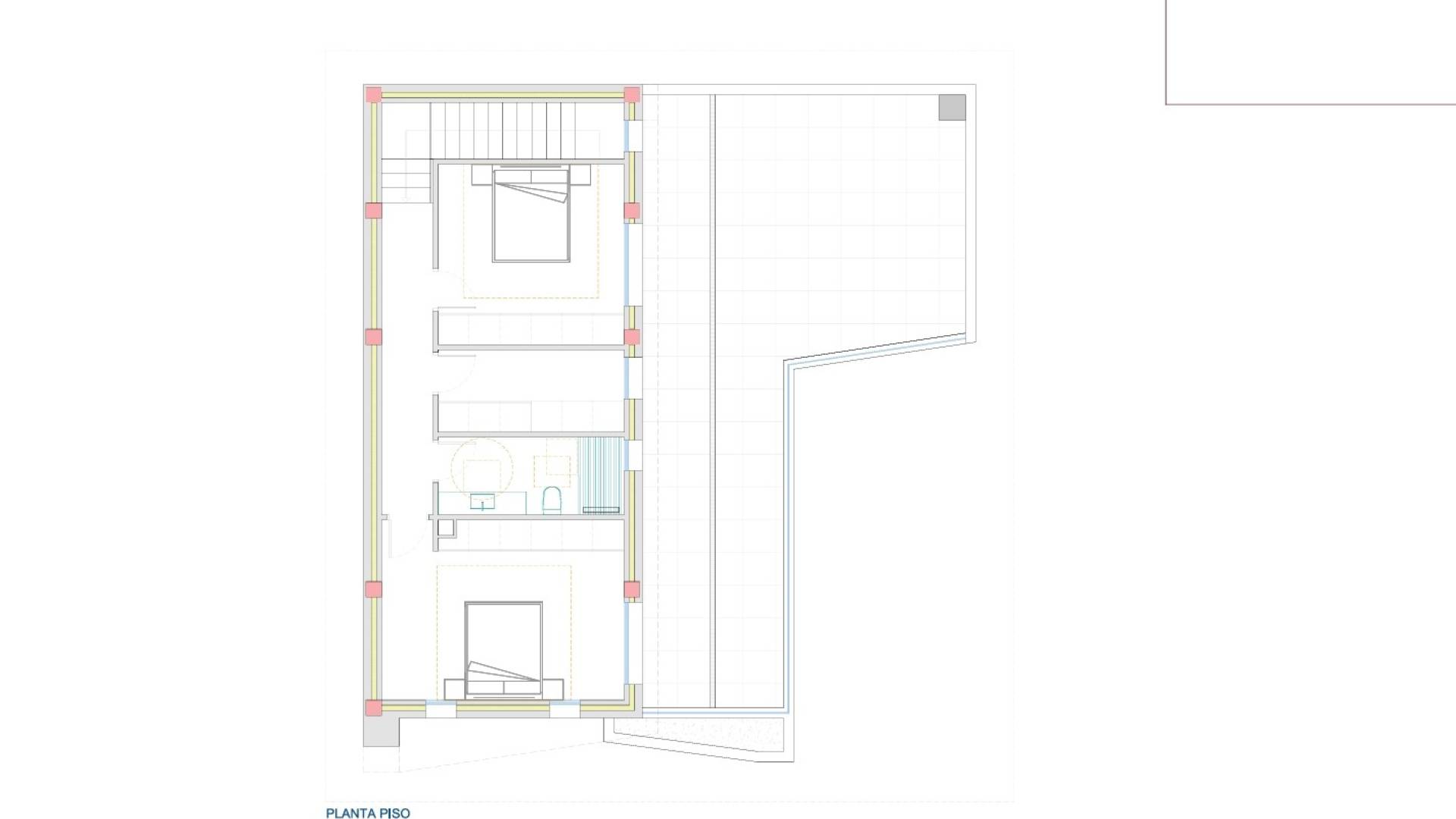
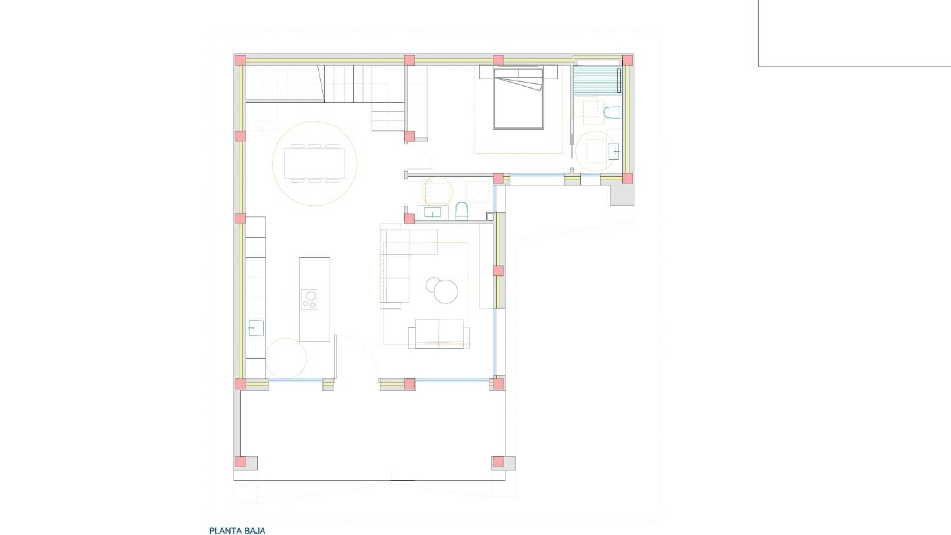
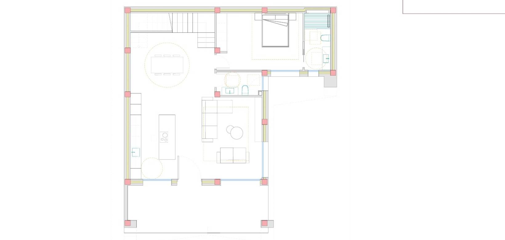
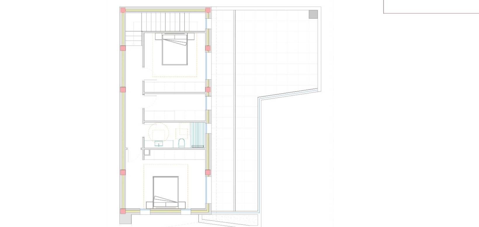
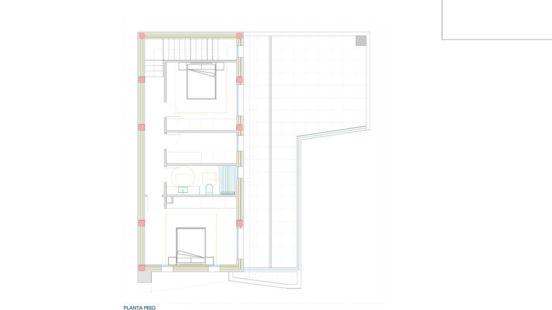
Nieuwbouw project in drie fases, startende met Fase 11 aan de zuid zijde. Deze fase is bestaande uit een 6-tal erg ruime en moderne villa's. Het project is gelegen in de charmante wijk Dolores. Op het gelijkvloers vinden we een ruime leefkamer, prachtige keuken met kookeiland, mooie ruime TV-hoek en een gastentoilet. De woning beschikt standaard over drie tweepersoonsslaapkamers, waarvan 1 op het gelijkvloers met en-suite badkamer en twee op het eerste verdiep, waar ook een familie badkamer en een wasplaats zijn voorzien. De totale bebouwde oppervlakte bedraagt circa 165 vierkante meter, met een perceeloppervlakte van circa 260 vierkante meter, wat voldoende ruimte biedt voor comfortabel wonen. De villa beschikt ook over een kelder (technische kelder) dewelke bruut wordt opgeleverd maar kan tegen meerprijs worden afgewerkt De woning beschikt over een prachtige open keuken met inbouwapparatuur en een ontbijtbar, een gezellige en ruime woonkamer, slaapkamers met inbouwkasten en nog veel meer. Dankzij de mooie ruime inplanting is er veel natuurlijk licht en is er een aangenaam uitzicht op het prachtige terras en het stadspark. Naast het terras op de begane grond beschikt de villa ook over een ruim terras op de eerste verdieping en de luxe van een privézwembad, perfect om te ontspannen of gasten te ontvangen, alsook een parkeergelegenheid op eigen terrein. Alle aluminium ramen zijn voorzien van elektrische rolluiken en de woning is voorzien van een versterkte veiligheidsdeur. De woning is voorzien van airconditioning op gelijkvloers en 1ste verdiep waardoor deze direct te betrekken is.
Deze informatie is hier onderhevig aan fouten en maakt geen deel uit van een contract. De aanbieding kan zonder kennisgeving worden gewijzigd of ingetrokken. Prijzen zijn exclusief aankoopkosten.
API Member Number: 1079
Allereerst bedankt dat je contact met ons hebt opgenomen.
We hebben uw verzoek met betrekking tot de eigenschap referentie ontvangen:BC-52209. Een van onze agenten neemt zo snel mogelijk contact met u op.
Allereerst bedankt dat je contact met ons hebt opgenomen.
We hebben een aanvraag voor een rapport ontvangen als u de prijs van het onroerend goed met de referentie verlaagt: BC-52209
Bekijk in de tussentijd eens een selectie van vergelijkbare woningen die voor u van belang kunnen zijn: