
Nieuwe Villa in La Romana – Exclusiviteit, Natuur en Innovatief Ontwerp
Wij presenteren deze spectaculaire nieuwe villa in La Romana, momenteel in aanbouw, met een verwachte oplevering eind 2025 of begin 2026. Ontworpen voor degenen die op zoek zijn naar kwaliteit, efficiëntie en een bevoorrechte natuurlijke omgeving, combineert dit eigendom moderne architectuur met functionaliteit en comfort in elk detail.
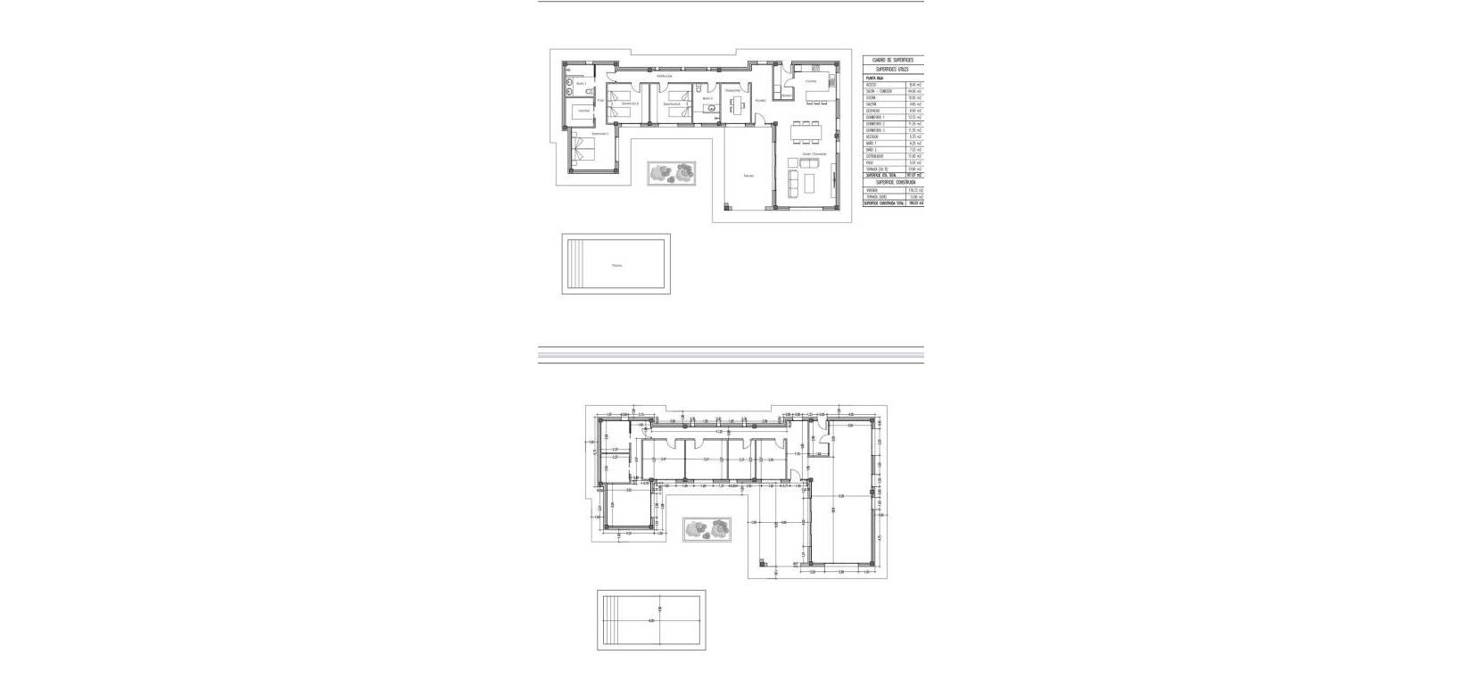
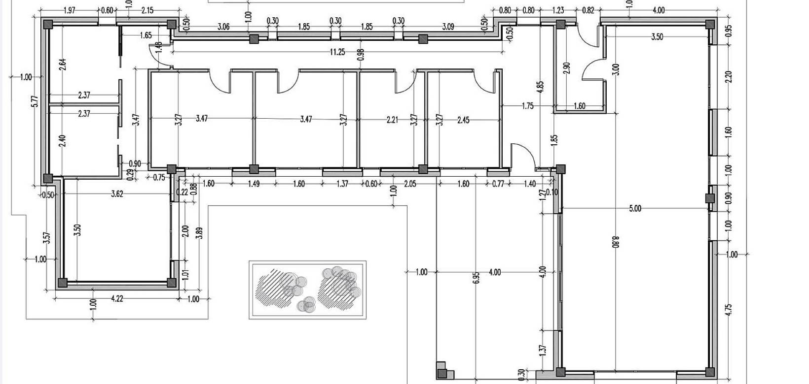
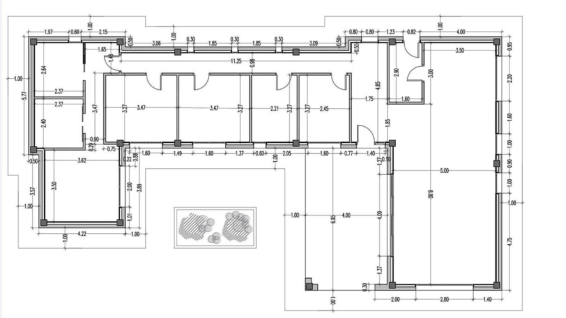
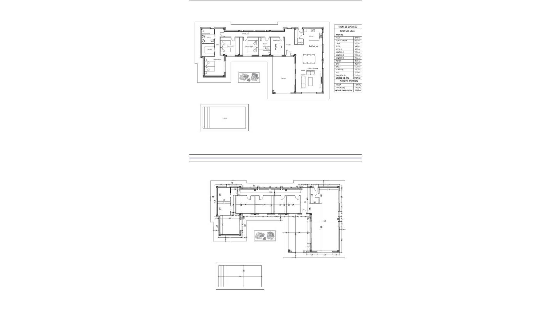
Algemene Kenmerken:
- Gebouwde oppervlakte: 190 m²
- Privéperceel: 11.000 m² (waarvan 4.000 m² omheind)
- Slaapkamers: 3 slaapkamers + kantoor
- Badkamers: 2 complete badkamers
- Zelfstandig inloopkast
- Ruim terras met uitzicht
- Privézwembad 8x4 m met LED-verlichting
- Indrukwekkend uitzicht op de bergen
- Verwachte oplevering: Eind 2025 / Begin 2026
Interne Indeling met Oppervlakken
- Woon- en eetkamer: 44,00 m²
- Gesloten keuken: 10,50 m²
- Galerij: 4,65 m²
- Hoofdslaapkamer: 13,15 m²
- Slaapkamers 2 en 3: 11,35 m² elk
- Kantoor: 8,00 m²
- Inloopkast: 5,70 m²
- Badkamer 1: 6,25 m²
- Badkamer 2: 7,22 m²
- Hal: 11,00 m²
- Terras met uitzicht: 13,90 m²
Kwaliteitsomschrijving – Bouw en Afwerkingen
Structuur en Gevels
Fundering met geïsoleerde funderingsplaten en een gewapend betonskelet
Witte monocouche gevel met termoarcilla afwerking en EPS isolatiekamer
Dak
Plat dak met afwateringssysteem
Buitenschrijnwerk
Veiligheidsdeur van versterkt staal
Antracietgrijze PVC ramen met thermische onderbreking
Climalit, stenen vensterbanken en gemotoriseerde rolluiken
Binnen schrijnwerk
Wit gelakte deuren met designhendels
Vloeren en Bekleding
Porcellanato keramische tegels van hoge kwaliteit in het hele huis
Antislipvloeren op terrassen en de buitenomheining
Aangepaste keramische bekleding in de keuken en badkamers
Keuken en Badkamers
Keuken
Hoge en lage kasten tot aan het plafond
Silestone werkblad met centraal eiland
Voorinstallatie voor huishoudapparaten en afzuigkap
RVS gootsteen en mengkraan
Badkamers
Keramiek van 1e kwaliteit
Douchebakken met glazen wanden
Witte porseleinen sanitaire voorzieningen
Badkamermeubels met inbouwwastafel en spiegel
Chroom mengkranen
Comfort en Technologie
Vloerverwarming en airconditioning (koud/warm) in de woonkamer en slaapkamers
Warmwaterproductie via elektrische boiler van 100 liter
Voorinstallatie voor zonnepanelen op het solarium
Verticaal ventilatiesysteem
Elektrisch systeem met een hoog elektrificatie-niveau
Gemotoriseerde rolluiken
Video-intercom
TV- en datainstallaties in slaapkamers en woonkamer
Exterieur – Natuur en Privacy
- Privézwembad van 8 x 4 meter met LED-verlichting
- Tuingebied met kunstgras (ca. 15 m²)
- 4.000 m² omheind terrein met automatische toegangspoort voor voertuigen (5 m)
- Frontomheining met muur en metalen hek
Locatie – La Romana, Alicante
Deze villa is gelegen in een van de rustigste en meest gewilde gebieden in het binnenland van Alicante. Omgeven door natuur, biedt het privacy, veiligheid en spectaculaire uitzichten op de bergen. Slechts een paar minuten van het stadscentrum en met uitstekende verbindingen naar de stad Alicante, de luchthaven en de kust.
Deze informatie is hier onderhevig aan fouten en maakt geen deel uit van een contract. De aanbieding kan zonder kennisgeving worden gewijzigd of ingetrokken. Prijzen zijn exclusief aankoopkosten.
API Member Number: 1079
Allereerst bedankt dat je contact met ons hebt opgenomen.
We hebben uw verzoek met betrekking tot de eigenschap referentie ontvangen:ADH-92851. Een van onze agenten neemt zo snel mogelijk contact met u op.
Allereerst bedankt dat je contact met ons hebt opgenomen.
We hebben een aanvraag voor een rapport ontvangen als u de prijs van het onroerend goed met de referentie verlaagt: ADH-92851
Bekijk in de tussentijd eens een selectie van vergelijkbare woningen die voor u van belang kunnen zijn: