
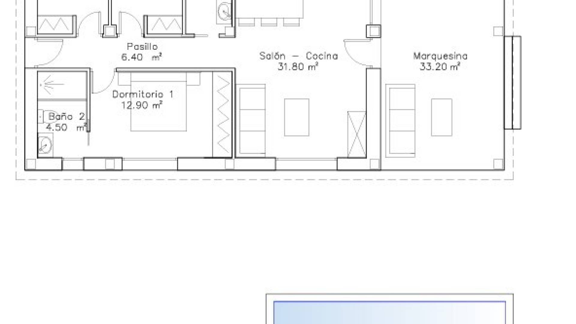
Very large building plot of over 40.000 m2 in Yecla. The plot has several levels and offers amazing views on the surrounding mountains. It has an irrigation water connection and electricity connection included in the price, This plot is extra special because it already has a design for a house included in the price. The design includes a house with 3 bedrooms, 2 bathrooms, an open plan kitchen and living room, a covered porche and a 4x8m pool. We work with several builders in Yecla, a house like this can be build for approx. 250.000 euro. You can also buy the plot without the house design for 52.000 euros.
This info given here is subject to errors and do not form part of any contract. The offer can be changed or withdrawn without notice. Prices do not include purchase costs.
API Member Number: 1079
First of all, thanks for contacting us.
We have received your request regarding the property reference: ET-86491. One of our agents will contact you as soon as possible.
First of all, thanks for contacting us.
We have received a request for a report if you lower the price of the property with the reference: ET-86491
In the meantime, please have a look at this selection of similar properties, that might be of interest to you: